溝蓋(側溝蓋)とは?
溝蓋(側溝蓋)は、道路の脇にある排水溝のふたのことです。排水溝によっては溝蓋がついていない場所もありますが、溝蓋を取りつければ通行時の安全も確保できます。また溝蓋がごみの侵入を防ぐため、排水溝のつまり防止にも効果的です。
溝蓋の種類と特徴
道路の排水溝の溝蓋は、コンクリート製を使うことが一般的です。ところが街中を観察してみると、コンクリートと同じくらい金属製で格子柄の溝蓋も目につくでしょう。格子柄の溝蓋は「グレーチング溝蓋」といい、素材やデザインは違いますが、用途はコンクリート製と同じです。
コンクリートの溝蓋
コンクリート製の溝蓋は、交通量の多い道路や私有地の侵入口(玄関やガレージ)の前に使われることが多いです。コンクリート製なので、溝蓋の上を車が通過しても破損する心配がありません。また上部がほぼふさがれているのでにゴミが侵入しにくく、排水溝が詰まりにくいです。
グレーチング溝蓋
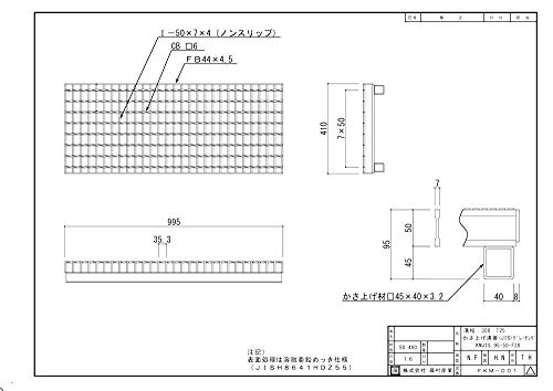
グレーチング溝蓋は、素材を格子状に加工しているのが特徴です。「グレーチング」は英語で鉄格子を意味するGratingに由来するため、素材も金属を使っていることが多いです。ただし金属製には「水にぬれると滑りやすい」「重すぎて移動しにくい」などのデメリットもあります。近年はゴム製や木製など、金属製のデメリットをカバーできるものも人気です。
溝蓋のサイズ・値段
溝蓋にはコンクリート製の溝蓋とグレーチング溝蓋の2種類ありますが、2種類のサイズには大きな違いはありません(規格外は除く)。そのためシンプルなデザインが多いコンクリート製のほうが、グレーチング溝蓋より値段は安いです。グレーチング溝蓋は、デザインや加工方法の違いで値段が変わります。
コンクリート溝蓋
コンクリート製の溝蓋には3タイプあります。シンプルなデザインで街でもよく見かけられるのが、「標準品」と呼ばれるものです。標準品の表面に防音対策用の加工が施されているのが、アートノイズレスタイプです。排水溝の角部分にみられる正方形の溝蓋は、ファイコンといいます。
値段
コンクリート製は、側溝の溝蓋の中でも値段が安いのが魅力です。しかし、比較的安価なコンクリート製の溝蓋も、タイプやサイズの違いで値段も変わります。3タイプの値段は「標準品<アートノイズレスタイプ<ファイコン」です。購入する際にはタイプの違いも確認しましょう。
グレーチング溝蓋
グレーチング溝蓋には蓋のはめ込み方法の違いで4タイプありますが、サイズはコンクリート製とほぼ同じです。メイン素材が金属なので価格は高めですが、コンクリート製よりも加工がしやすく、デザイン性の高い製品も人気があります。特に観光地では、特産品や名所をデザインしたご当地溝蓋が人気です。
値段
グレーチング溝蓋は、排水溝へのはめ込み方法によってデザインが変わります。はめ込み方法によって加工方法や材料が変わり、シンプルな構造は値段が安く、複雑な構造になるほど高めです。また同じデザインでも格子の間隔によって質量が変わるため、格子の間隔が狭くなるほど値段が高くなります。
おすすめのグレーチング溝蓋
排水溝の溝蓋は、グレーチング溝蓋がおすすめです。コンクリート製と違い取り外しがしやすいので、定期的に排水溝を掃除するのに便利です。
おすすめ①U字溝タイプノンスリップ細目
U字溝タイプノンスリップ細目
参考価格: 2,260円
両端に羽がついているタイプは、排水溝の上にのせるだけで簡単に装着できます。金属製ですが、滑り止め機能がついているので、玄関やガレージ前の溝蓋におすすめです。
| おすすめ度 | ★★★ |
|---|---|
| おしゃれ度 | ★ |
| タイプ | U字溝タイプ |
|---|
おすすめ②溝蓋グレーチング並み目
溝蓋グレーチング並み目
参考価格: 3,613円
側溝蓋タイプは、U字側溝タイプよりも重厚な作りをしているのが特徴です。側溝の内部に溝を作りはめ込むので、装着後に段差ができにくいです。並み目なので細目よりも軽く、成人男性であれば1人でも取り外せます。
| おすすめ度 | ★★★ |
|---|---|
| おしゃれ度 | ★ |
| タイプ | 溝蓋タイプ |
|---|
おすすめ③かさ上げみぞぶた
かさ上げみぞぶた
参考価格: 16,280円
かさ上げタイプは、耐久性と防音性に優れています。値段はやや高めですが、溝蓋の音に悩んでいる人や丈夫な溝蓋を探している人におすすめです。
| おすすめ度 | ★★ |
|---|---|
| おしゃれ度 | ★ |
| タイプ | かさ上げタイプ |
|---|
おすすめ④落ち葉落下防止型つば付きためます用グレーチング
落ち葉落下防止型つば付きためます用グレーチング
参考価格: 5,402円
水が集まりやすい排水溝の角には落ち葉もたまりやすいため、落ち葉落下防止機能が付いたためます用グレーチングがおすすめです。落ち葉落下防止型つば付きためます用グレーチングは、格子の間隔が細いので、小さな落ち葉の落下も防げます。
| おすすめ度 | ★★★ |
|---|---|
| おしゃれ度 | ★★ |
| タイプ | 枡蓋タイプ |
|---|
おしゃれな歩道用の溝蓋
自宅の庭や私有地内の歩道には、機能性だけでなくデザインがおしゃれな側溝蓋がおすすめです。おしゃれな歩道用側溝蓋を使用するには、「耐荷重に問題がない」「側溝に適したサイズである」の2つをクリアしていることが条件です。無機質な側溝蓋をおしゃれなものに変えるだけで、全体の印象も大きく変わります。
おしゃれな歩道用側溝蓋①木製グレーチング
木製グレーチング
参考価格: 3,239円
木製グレーチングはおしゃれなだけでなく、羽以外はすべて木製で、熱がこもりにくいのが特徴です。U字溝タイプで値段も安く、木でできた側溝蓋なので、女性でも簡単に持ち運びができます。
| おしゃれ度 | ★★★ |
|---|---|
| おすすめ度 | ★★★ |
| タイプ | U字溝タイプ |
|---|
おしゃれな歩道用側溝蓋②景観グレーチング
景観グレーチング
参考価格: 6,900円
景観グレーチングも、木製のおしゃれな側溝蓋です。天然の杉材を使用していますが、防腐処置を施しているので、水にも強くシロアリの心配もほとんどありません。長さを調整したい場合は、オプションサービスのグレーチングカット加工を追加するのがおすすめです。
| おしゃれ度 | ★★★ |
|---|---|
| おすすめ度 | ★★ |
| タイプ | 溝蓋タイプ |
|---|
溝蓋の交換方法
自宅周辺の排水溝の蓋が壊れてしまうと、誤って排水溝に落ちる危険があります。排水溝と溝蓋との相性もあり、サイズがあっていなければ騒音の原因にもなるため、どのタイプの溝蓋を選ぶかも重要です。さらに「どの場所に設置された溝蓋を交換するのか」も重要なポイントです。
溝蓋の交換①道路管理者の確認
自宅周辺の排水溝であっても、排水溝が設置された道路の管理者次第で、法律上の手続きが必要です。明らかに私有地である場合は申請の必要はありませんが、自宅周辺の排水溝は国や自治体が管理者である可能性が高いです。道路管理者は市区町村役場で調べられるので、現状報告もかねて役所窓口で相談しましょう。
現場写真を撮影しておくと便利
役所に直接相談する場合は、溝蓋が破損している状況の写真を持参しましょう。持参する写真は、溝蓋の破損個所がはっきりとわかるものを準備します。そのほかにも破損している場所が道路のどの位置にあるのかがわかるよう、現場周辺の写真も準備しておくのがおすすめです。
溝蓋の交換②溝蓋を選ぶ
交換をするのに特別な申請が必要ない場合は、交換するための溝蓋選びに移りましょう。個人で溝蓋を交換する場合は歩道用になるので、耐荷重2tの歩道用から選びます。ただし道路の排水溝の場合は、歩道用ではなく道路用(耐荷重25t)となる点に注意してください。
溝蓋の交換③古い溝蓋の処分
交換した古い溝蓋は一般ごみではなく、産業廃棄物として処分します。産業廃棄物は素材によって処分方法も細かく指定されており、コンクリート製は「コンクリートくず」、金属製グレーチング溝蓋は「金属くず」です。産業廃棄物の処分は専門の処理業者で行うので、事前に市区町村窓口に相談するのがおすすめです。
溝蓋に関するよくある質問
庭の排水溝におすすめの溝蓋は?
庭の排水溝には、木製のグレーチング溝蓋がおすすめです。木製は金属製と違い熱がこもりにくいので、日差しの強い夏でも表面の温度が上がりにくく安全です。
溝蓋はどこで購入できる?
大型のホームセンターで購入できます。デザイン、素材、価格にこだわりたい場合は、通販を利用するのがおすすめです。
おすすめ溝蓋の商品比較
| 商品 | ![]() | ![]() | ![]() | ![]() | ||
|---|---|---|---|---|---|---|
| 商品名 | U字溝タイプノンスリップ細目 | 溝蓋グレーチング並み目 | かさ上げみぞぶた | 落ち葉落下防止型つば付きためます用グレーチング | 木製グレーチング | 景観グレーチング |
| 価格 | 2,260円 | 3,613円 | 16,280円 | 5,402円 | 3,239円 | 6,900円 |
| おすすめ度 | ★★★ | ★★★ | ★★ | ★★★ | ★★★ | ★★ |
| おしゃれ度 | ★ | ★ | ★ | ★★ | ★★★ | ★★★ |
| 種類 | ||||||
| タイプ | U字溝タイプ | 溝蓋タイプ | かさ上げタイプ | 枡蓋タイプ | U字溝タイプ | 溝蓋タイプ |
| 商品リンク |
まとめ
日常生活ではあまり気にすることがない側溝蓋ですが、素材やデザインによって使い方、用途、おすすめの使用場所などが違います。さらに自宅周辺や庭の側溝にあうおしゃれな側溝蓋も製品化されているため、見た目もこだわれるようになったのが近年の側溝蓋の特徴です。





































































